JR龍ヶ崎市駅から東京駅までは丁度1時間。都心への通勤圏内です。
しかもこの地域は、牛久沼と利根川にはさまれた豊かな土壌。
少し足を延ばせば豊かな穀倉地帯が広がります。
新しい道路やスポーツ施設も整い、大型店舗が立ち並び始めたこの龍ヶ崎市を中心に、
週末滞在型または永住型のおすすめ物件をご紹介します。
竜ケ崎線竜ケ崎駅の東1km、竜ケ崎二高の東側に建つ。
1991年築、リフォーム中。建物101㎡・3LDK。敷地373㎡(112坪)、1,999万円。
間取図を開く
JR龍ヶ崎市駅から北東に1.5kmの松葉4-4。
[白鳥通り]から[歳時記の道]を100m南下した住宅地に建つ。
2002年築。建物362㎡・5LDKの豪壮な屋敷。LDKは40帖ある。敷地586㎡(177坪)、5,980万円。
1階間取図を開く
2階間取図を開く
居間の写真を開く
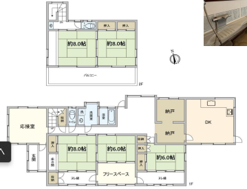
JR龍ヶ崎市駅から北東に2kmの松葉5-17。[歳時記の道]が[白鳥通り]にぶつかる辺りに建つ。
1988年築。建物140㎡・4LDK。敷地309㎡(93坪)、1,498万円。
間取図を開く
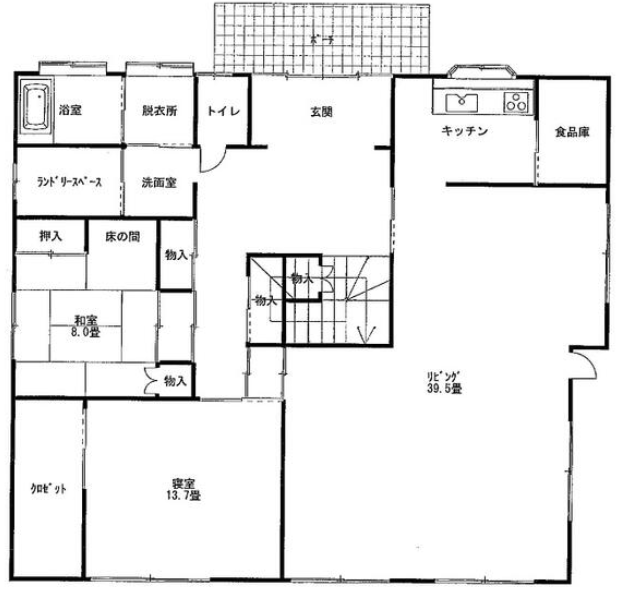
関東鉄道・竜ケ崎線竜ケ崎駅の東南東4km、鹿島神社や天台宗万願寺など四軒の寺社がある宮渕町の74に建つ。
1997年築、建物133㎡、各部屋を広くとった3SLDK、敷地は920㎡(278坪)と広い。1,580万円。
間取図を開く
敷地と建物写真
JR龍ヶ崎市駅から南東に2km、セブンイレブンと〖南中島街区公園〗の中間地点の南中島159に建つ。
1995年築、建物153㎡の5LDK。土地面積588㎡(177坪)。2,200万円。
間取図を開く
竜ケ崎線竜ケ崎駅の北800m,歴史民俗資料館や文化会館がある地区に建つ。
2010年築、建物132㎡の4LDK。土地面積370㎡(112坪)。1,680万円。
間取図を開く
室内写真
竜ケ崎線竜ケ崎駅の東北東800m,龍ヶ崎小学校の南側住宅地に建つ。
1970年築、建物130㎡の6DK。土地面積353㎡(107坪)。1,200万円。
間取図を開く
竜ケ崎線竜ケ崎駅の南500m。六斗蒔、セブンイレブンの近く。
1968年築、建物173㎡、敷地面積519㎡(157坪)の6LDK。1,200万円。
間取図を開く
JR龍ヶ崎市駅から東に5km、龍ヶ崎市白羽4-3,白羽第三街区公園の近くに建つ。
2011年築の建物225㎡の6LDK。敷地は541㎡(164坪)。4,780万円。
間取図を開く
室内写真を開く
JR龍ヶ崎市駅から東に6km。薄倉町鹿島神社の200m南の薄倉町1613に建つ。
1971年築、1993年増築の建物135㎡、7DK。敷地は817㎡(247坪)。298万円。
地図を開く
間取図を開く
室内写真
竜ケ崎線竜ケ崎駅から東へ約1kmの横町、商業地域に建つ。
主屋建物280㎡の11LDK、別棟建物も4LDK、加えて貸店舗もある。敷地2340㎡(708坪)の屋敷。
価格は13,000万円。
配置図を開く
主屋の間取図を開く
別棟の間取図を開く