時々、家や土地などの掘り出し物の売買物件を紹介しています
ホームへ戻る
下末吉5-19・第二京浜国道そばの新築17号棟。 宮の下バス停徒歩1分、JR鶴見駅徒歩20分。敷地114㎡、建物102㎡、6,380万円
下末吉5-19・第二京浜国道そばの新築20号棟。 宮の下バス停徒歩1分、JR鶴見駅徒歩20分。敷地143㎡、建物101㎡、6,380万円
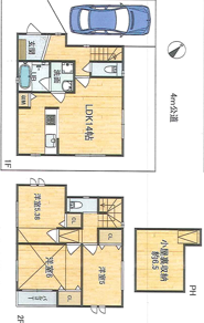
三ッ池公園南門近くの閑静な住宅地の角地に建つ新築。 準耐火構造の省エネ基準適合住宅。敷地99㎡、建物77㎡、4,370万円
住所は北寺尾4-12-3(地番4-51)の車道から 10mほど階段を下ったところにある土地。高低差のある部分は擁壁があり、整地してある。
横浜市鶴見区馬場1-20・古家付き土地。 菊名or新横浜or鶴見行のバス停へは徒歩3分。菊名駅へは徒歩19分。260㎡、4,780万円。
東寺尾東台8-1の土地。西側と北側が道路の角地にある。 横浜←→鶴見or川崎間のバス停二反田ヘ徒歩2分。京急の花月総持寺駅へは徒歩18分。212㎡、2,980万円
寺谷1-26。玄関入ると3LDKと4LDK の二棟に別れる二世帯住宅。敷地487㎡、建物292㎡、16,800万円。駐車場は3台分。